Royal Hallmark is a freehold boutique development located in the historic and culturally rich neighborhood of Katong. The development consists of 32 new condo units in a single 5-storey block, providing residents with a unique living experience in the heart of one of Singapore's most vibrant neighborhoods. The area is rich in cultural history and influences, which can be seen from the beautifully refurbished heritage shophouses lining the streets and the numerous local delicacies available in this foodie haven.
In terms of amenities, Royal Hallmark is surrounded by several popular food options such as hawker fare at the famous Old Airport Road Food Centre or Dunman Food Center, as well as trendy cafes and bistros dotted around the district. For shopping needs, residents can head to nearby shopping malls like Katong Shopping Centre, One KM and Katong V. The development is also within a 15-minute walk to Dakota and Tanjong Katong MRT stations, providing residents with islandwide connectivity via the Circle Line (CCL) and Thomson-East Coast Line (TEL).
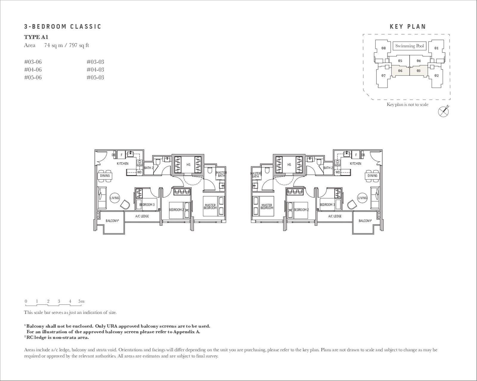
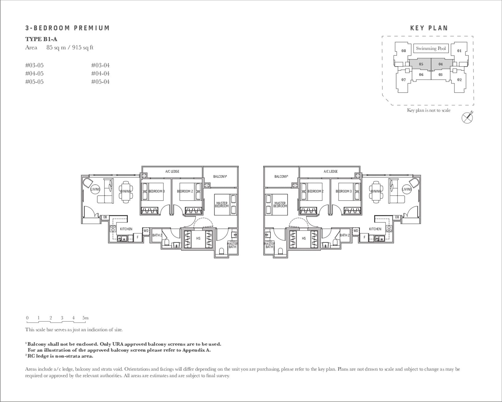
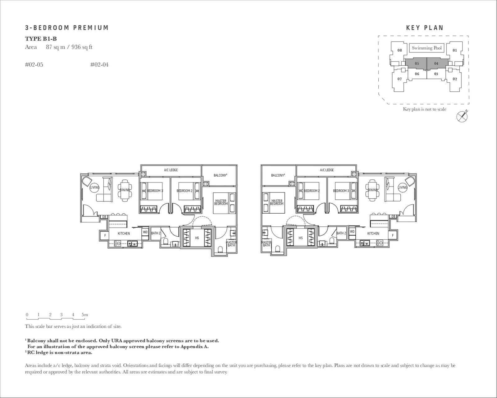
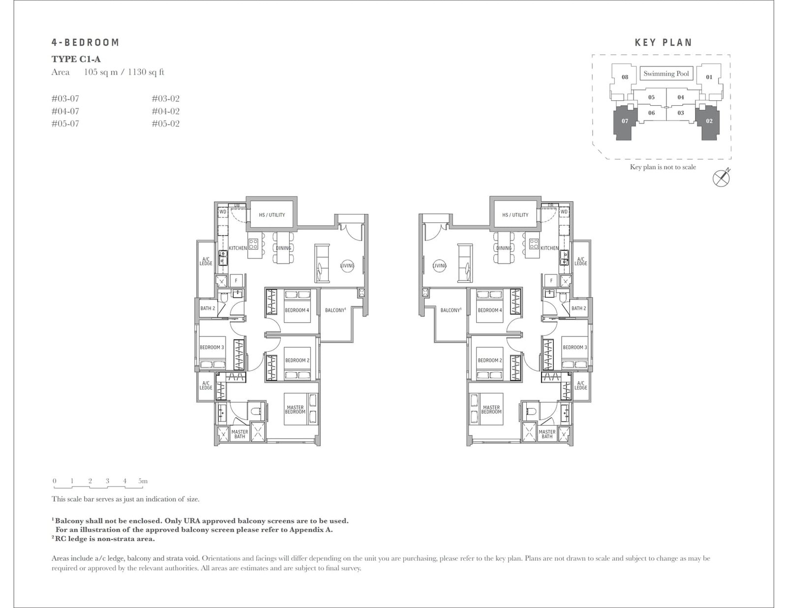
Given its proximity to many local schools like Tanjong Katong Secondary School, Tanjong Katong Primary, Tanjong Katong Girls' School, and Haig Girls' School, Royal Hallmark is especially ideal for families with school-going children. The remaining units at Royal Hallmark are priced between S$1.74M for a 3-bedroom Classic unit and S$2.329M for a 4-bedroom unit. The price per square foot (PSF) at Royal Hallmark ranges from S$1,926 to S$2,236. The showflat is open for viewing by appointment only.
















