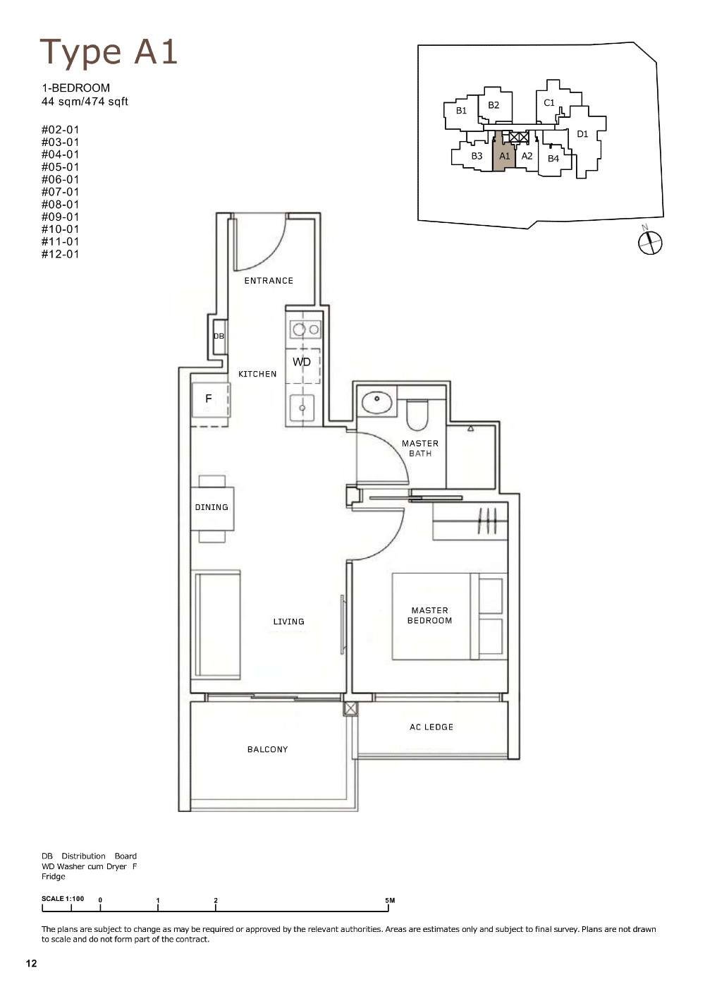
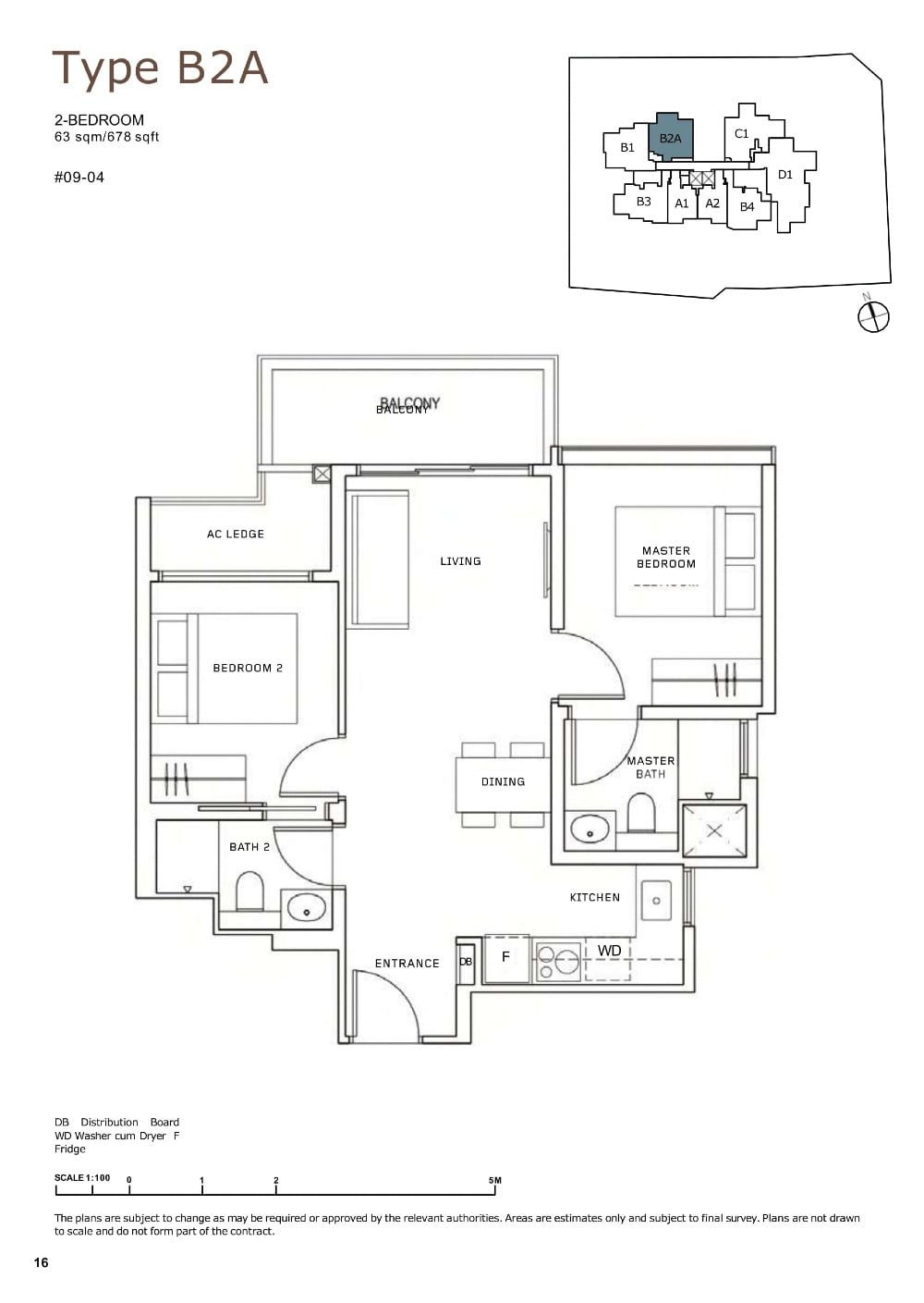
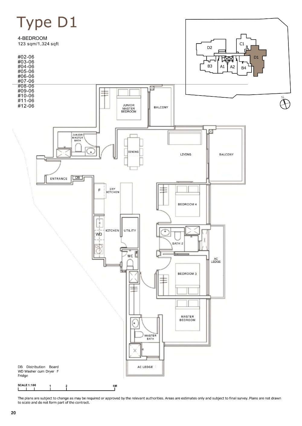
Myra is a freehold residential project located in the idyllic Potong Pasir neighbourhood, along Meyappa Chettiar Road. With a single tower that stands 12-storeys tall, Myra offers 85 residential units ranging from one to four bedrooms in size, presented with unique layouts, configurations and many facilities. The development is by Tiara Land Pte Ltd, a subsidiary of the renowned Selangor Dredging Berhad, a developer with a long-standing reputation in both Singapore and Malaysia, known for producing niche developments and innovative architecture.
Accessibility is a key feature of Myra, with Potong Pasir MRT station just 150 metres away. Singapore’s central destination spots at Orchard Road are just 4 MRT stops away by train, while the populous Nex Mega Mall is only two stops away, and accessible in five minutes. Additionally, there are three expressways within easy access to Myra, including the Pan Island Expressway, Central Expressway and the Kallang-Paya Lebar expressways which are all a few minutes away by vehicle.
Residents of Myra will also have plenty of amenities to choose from, including the nearby Poiz Centre, which offers a variety of food and drink options, as well as essential shopping options like NTUC Fairprice and Watsons Pharmacy. The mall also has four enrichment schools for children, and for families looking for leisure activities, there are options like Playgolf Singapore, Automobile Association of Singapore, PUB Recreation Club, SAFRA Toa Payoh, Toa Payoh Stadium, and Singapore Khalsa Association. Additionally, Myra is located near many reputable schools such as Cedar Girls’ School, Cedar Primary School, Maris Stella High School, Stamford American International School, St. Andrew’s Secondary School, St. Andrew’s Junior College, Bendemeer Primary School, Hong Wen School, Pei Chun Public School.



















