Latest News
The Residences At W Singapore Sentosa Cove #01-05 SOLD 17/04/2024 The Residences At W Singapore Sentosa Cove #05-07 AVAILABLE 16/04/2024 The Residences At W Singapore Sentosa Cove #05-22 SOLD 16/04/2024 The Residences At W Singapore Sentosa Cove #06-25 SOLD 16/04/2024 The Residences At W Singapore Sentosa Cove #03-14 SOLD 16/04/2024 The Residences At W Singapore Sentosa Cove #03-10 SOLD 16/04/2024

Mori

223 Guillemard Road, 399738
Overview
Price Range
Enquire for more ~ S$2,377,000
PSF Range
S$1,566 ~ S$2,252
About this property
Read More Example

Mori is a freehold development that embodies the Japanese philosophy of wabi-sabi, which focuses on creating a sense of timeless beauty. This development is comprised of 137 new condo units, each designed with a mixture of walnut and marble to create a warm and comforting atmosphere. The smart home system that is installed in each unit allows residents to control their home devices remotely, either through voice commands or a mobile phone app.

The development also offers a variety of amenities for residents to relax and unwind, such as an Onsen Hideaway, Herb Garden and Hammock Pool. The location of Mori along Guillemard Road is also highly convenient, with Aljunied, Mountbatten and Dakota MRT stations within a 10-minute walk, providing easy connectivity to different parts of the city via the Circle Line and East-West Line. The Kallang-Paya Lebar Expressway and Nicoll Highway are also nearby, making the Central Business District and Sports Hub easily accessible.

Families with school-going children will also appreciate the convenience of having several reputable local schools such as Kong Hwa and Geylang Methodist School within a 1km walking distance. The pricing for the units at Mori ranges from S$1.253M for a 1-bedroom + Study unit to S$2.377M for a 4-bedroom unit, with a price per square foot (PSF) ranging from S$1,777 to S$2,213. The Mori showflat is located along Kallang Airport Drive and is open for viewing by appointment only. Potential buyers can book an appointment with the sales team to visit the exclusive Mori showflat today.

Mori is a freehold development that embodies the Japanese philosophy of wabi-sabi, which focuses on creating a sense of timeless beauty. This development is comprised of 137 new condo units, each designed with a mixture of walnut and marble to create a warm and comforting atmosphere. The smart home system that is installed in each unit allows residents to control their home devices remotely, either through voice commands or a mobile phone app.

The development also offers a variety of amenities for residents to relax and unwind, such as an Onsen Hideaway, Herb Garden and Hammock Pool. The location of Mori along Guillemard Road is also highly convenient, with Aljunied, Mountbatten and Dakota MRT stations within a 10-minute walk, providing easy connectivity to different parts of the city via the Circle Line and East-West Line. The Kallang-Paya Lebar Expressway and Nicoll Highway are also nearby, making the Central Business District and Sports Hub easily accessible.

Families with school-going children will also appreciate the convenience of having several reputable local schools such as Kong Hwa and Geylang Methodist School within a 1km walking distance. The pricing for the units at Mori ranges from S$1.253M for a 1-bedroom + Study unit to S$2.377M for a 4-bedroom unit, with a price per square foot (PSF) ranging from S$1,777 to S$2,213. The Mori showflat is located along Kallang Airport Drive and is open for viewing by appointment only. Potential buyers can book an appointment with the sales team to visit the exclusive Mori showflat today.

Read More
Details
  • Project

    Mori
  • District

    D14 Eunos / Geylang / Paya Lebar
  • Region

    RCR
  • Estate

    Geylang
  • Address

    223 Guillemard Road, 399738
  • Tenure

    Freehold
  • TOP Date

    2026
  • Blocks

    1
  • Storeys

    8
  • Carparks

    110
  • Total Units

    137
  • Land Area

    209
  • Type

    Condo
  • Joint Venture

    RL East Pte Ltd (Roxy-Pacific Holdings)
Site Plans
Elevation Chart
Floor Plans
Type
Size
Bed
Bath
Floor Plan
A1
Size 484 sqft
1 Bed
1 Bath
fp-mori-a1-a2-floor-plan.jpg
A2
Size 495 sqft
1 Bed
1 Bath
fp-mori-a1-a2-floor-plan.jpg
B1
Size 549 sqft
1 Bed
1 Bath
fp-mori-b1-b2-floor-plan.jpg
B2
Size 592 sqft
1 Bed
1 Bath
fp-mori-b1-b2-floor-plan.jpg
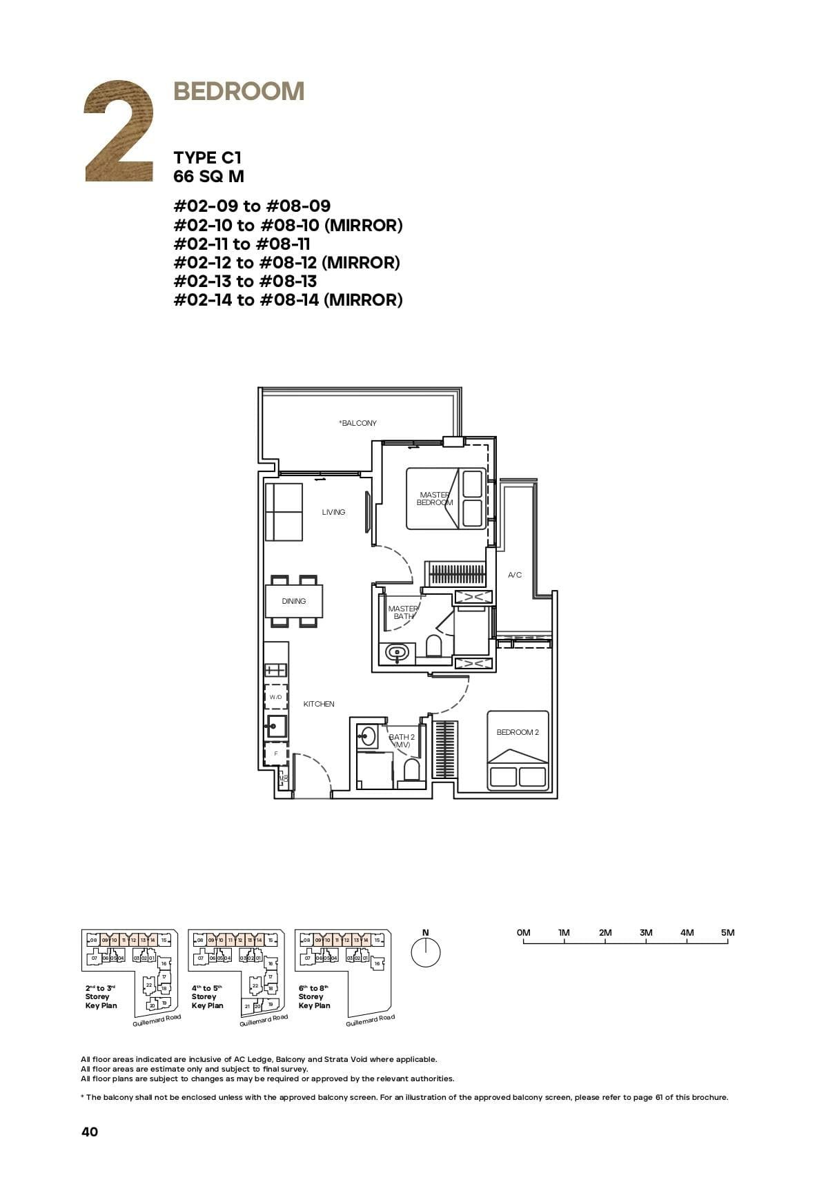
C1
Size 710 sqft
2 Bed
2 Bath
fp-mori-c1-floor-plan.jpg
C2
Size 710 sqft
2 Bed
2 Bath
fp-mori-c2-floor-plan.jpg
C3
Size 721 sqft
2 Bed
2 Bath
fp-mori-c3-floor-plan.jpg
D
Size 721 sqft
2 Bed
2 Bath
fp-mori-d-floor-plan.jpg
E
Size 883 sqft
3 Bed
2 Bath
fp-mori-e-floor-plan.jpg
F1
Size 958 sqft
3 Bed
2 Bath
fp-mori-f1-floor-plan.jpg
F2
Size 980 sqft
3 Bed
3 Bath
fp-mori-f2-floor-plan.jpg
F3
Size 990 sqft
3 Bed
3 Bath
fp-mori-f3-floor-plan.jpg
G1
Size 1023 sqft
4 Bed
3 Bath
fp-mori-g1-floor-plan.jpg
G2
Size 1098 sqft
4 Bed
3 Bath
fp-mori-g2-floor-plan.jpg
G3
Size 1173 sqft
4 Bed
3 Bath
fp-mori-g3-floor-plan.jpg
G4
Size 1184 sqft
4 Bed
3 Bath
fp-mori-g4-floor-plan.jpg
H
Size 1259 sqft
4 Bed
3 Bath
fp-mori-h-floor-plan.jpg
Media
Location Map

FAQs about Mori

RL East Pte Ltd (Roxy-Pacific Holdings)

The estimated TOP date is 2026.

223 Guillemard Road, 399738.

Mori is a Freehold development.

Mori comprises a total of 137 units.

Mori has a total of 1 blocks.

Mori floor plans can be found in the Floor Plan section above.
Mori site plan can be found in the Site Plan section above.
Roxy-Pacific Holdings
Roxy-Pacific Holdings

Developer Sales Team

"*" indicates required fields

MM slash DD slash YYYY
Select your most preferred bedroom size. You can always change your preference later.
Tell us how we can help you by providing as much details as you can.
Acceptance of Privacy Policy*
This field is for validation purposes and should be left unchanged.
Facebook
Twitter
LinkedIn
About the project information of Mori
Disclaimer: The information contained on this website is for general information purposes only. Starbuycondo.com.sg assumes no responsibility for errors or omissions in the contents of this website. In no event shall Starbuycondo.com.sg be liable for any special, direct, indirect, consequential, or incidental damages or any damages whatsoever, whether in an action of contract, negligence or other tort, arising out of or in connection with the use of the information provided herein. Starbuycondo.com.sg reserves the right to make additions, deletions, or modification to the contents of this website at any time without prior notice. If any of the project information on this page is inaccurate, please contact us and we will rectify and amend the project details as soon as possible. Please read our terms and conditions. To enquire the latest up to date information, please get in touch with our sales team. Our representative will provide necessary information to assist in your purchase.

Welcome to Starbuy Condo

Log in or sign up to stay informed about property listings, price drops, and exclusive offers.

Haven't signed up?

Tell us how you’d like to get started:

I agree to Starbuy Condo’s Terms of Service and Privacy Policy including the collection, use and disclosure of my personal information.

Filters

Property Type
Listing Type
District
Any Price
Any Price - slider
Any Price - inputs
S$
S$
PSF
PSF - slider
PSF - inputs
S$ psf
S$ psf
Bedroom
Bedroom
Bathroom
Bathroom
Region
Region
Tenure
Tenure
Floor Level
Floor Level
Status
Status
Walk to MRT
Walk to MRT - slider
Walk to MRT - inputs
mins
mins
Floor Size
Floor Size - slider
Floor Size - inputs
sqft
sqft
Completion Year
Completion Year - slider
Completion Year - inputs
year
year

Filters

Listing Type
Listing Type
Property Type