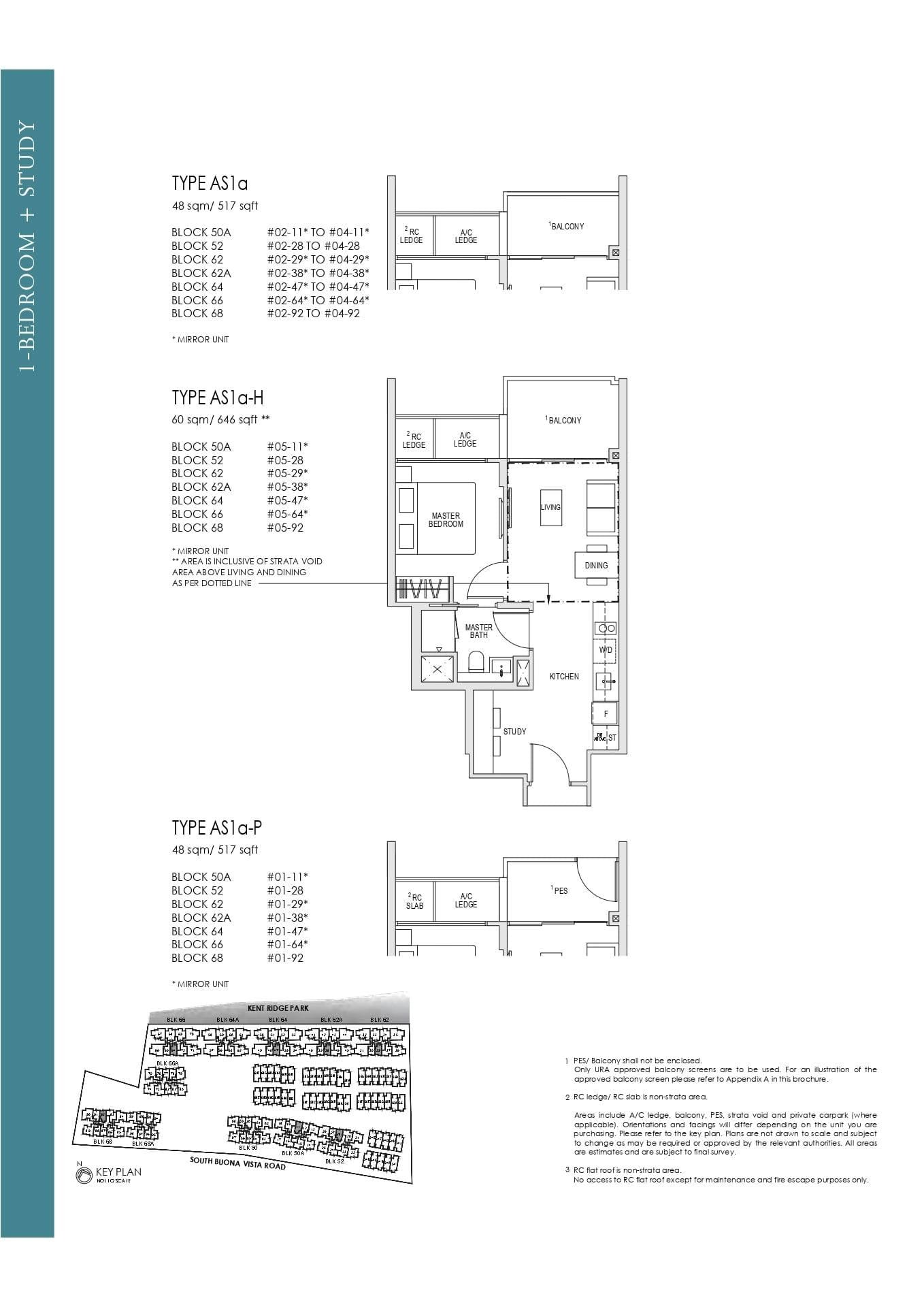
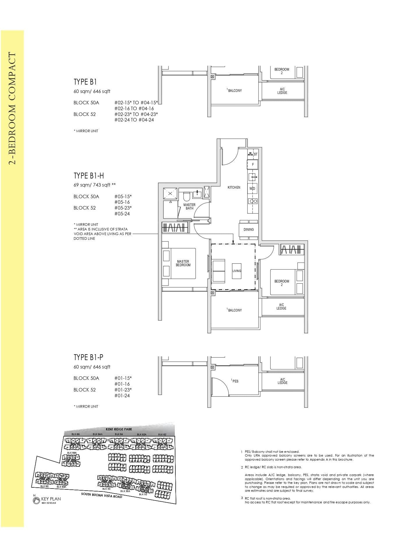
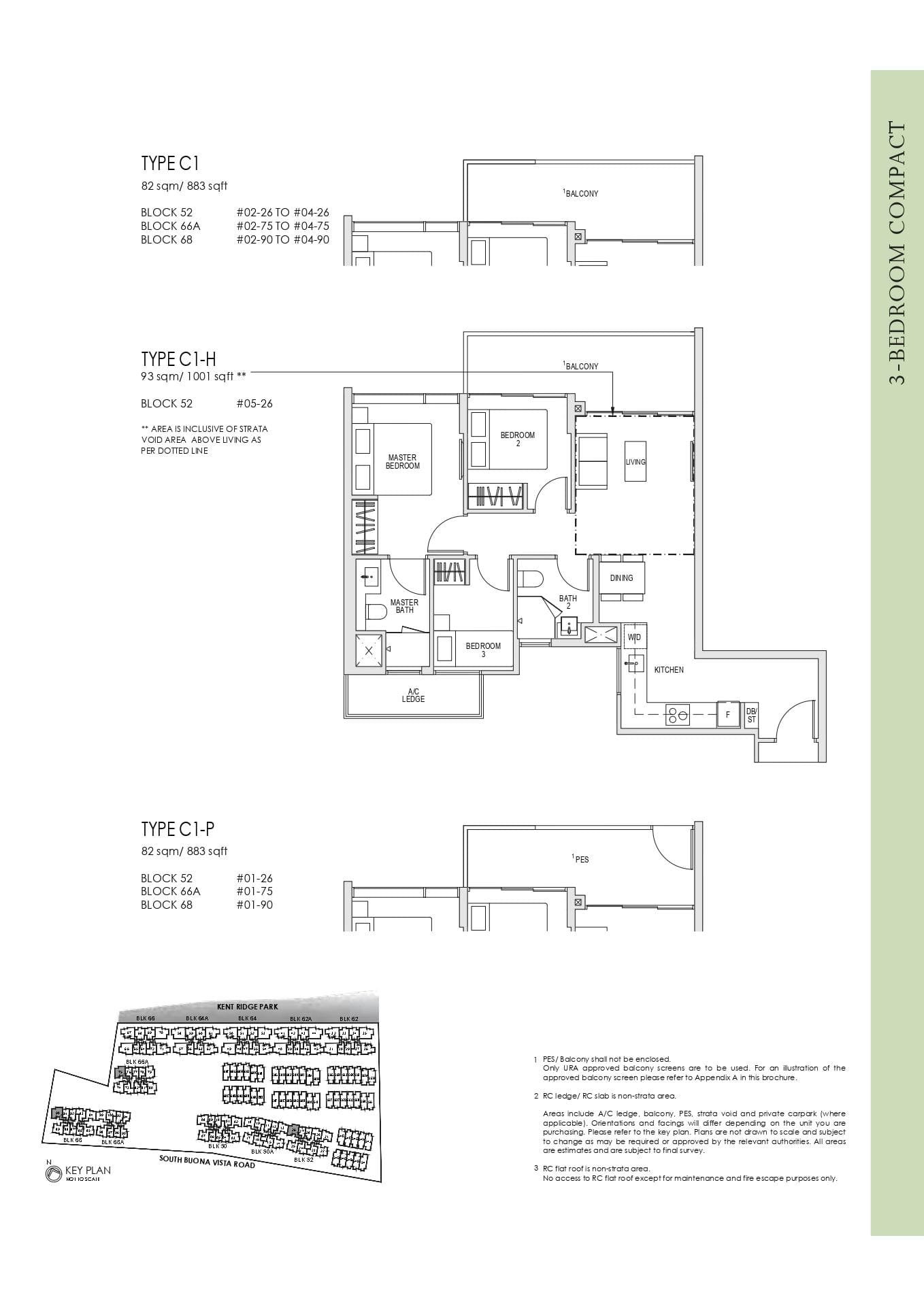
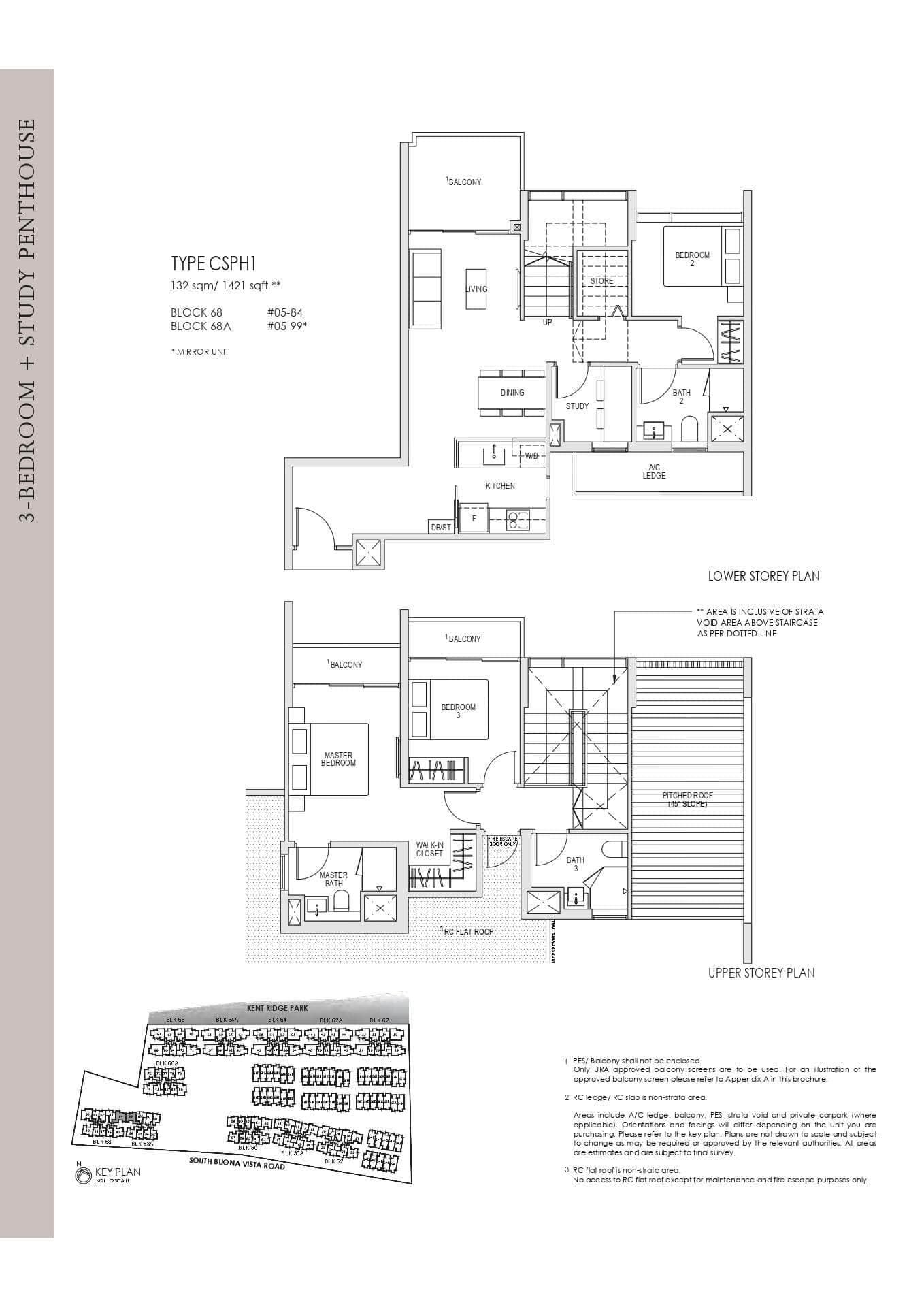
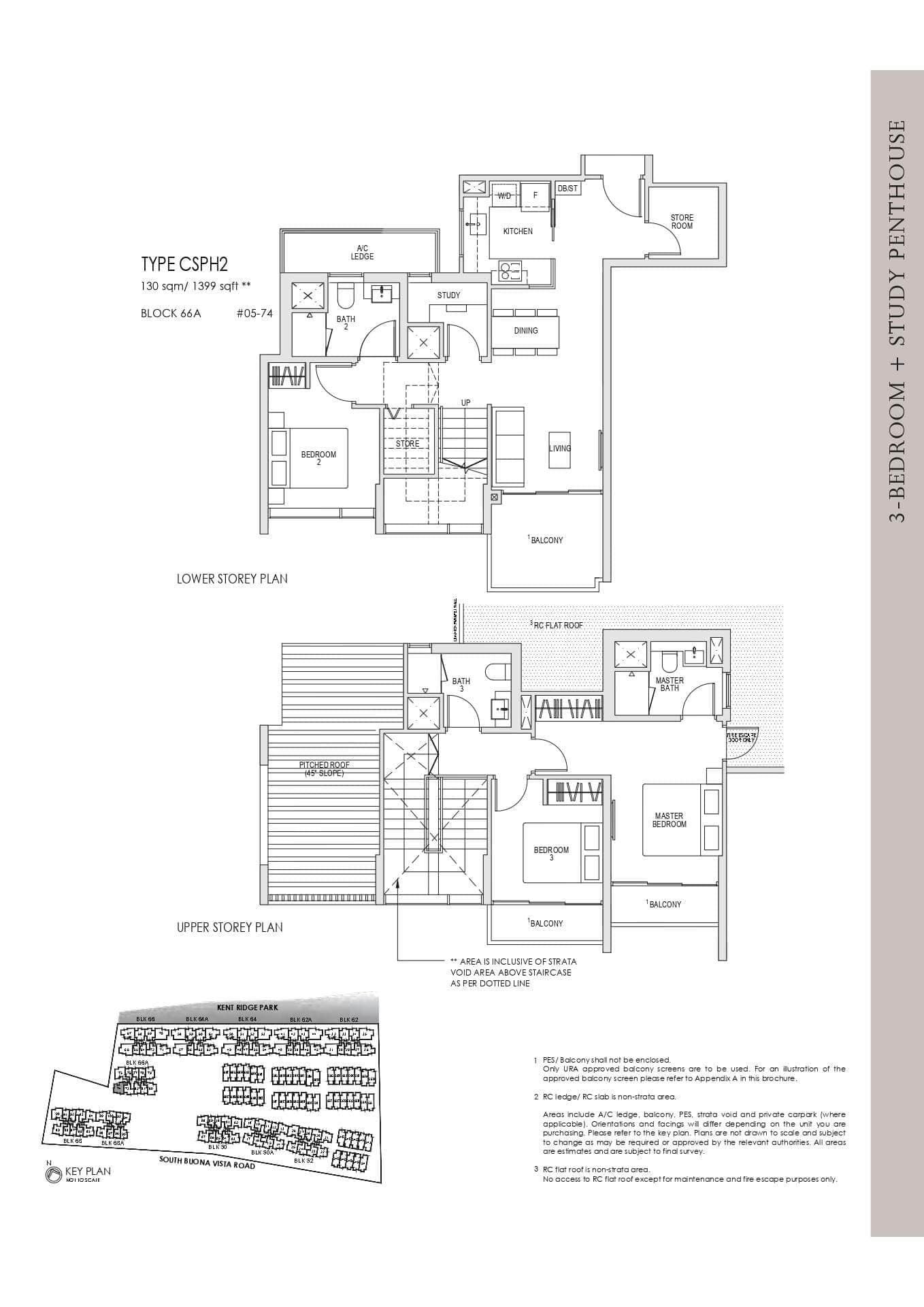
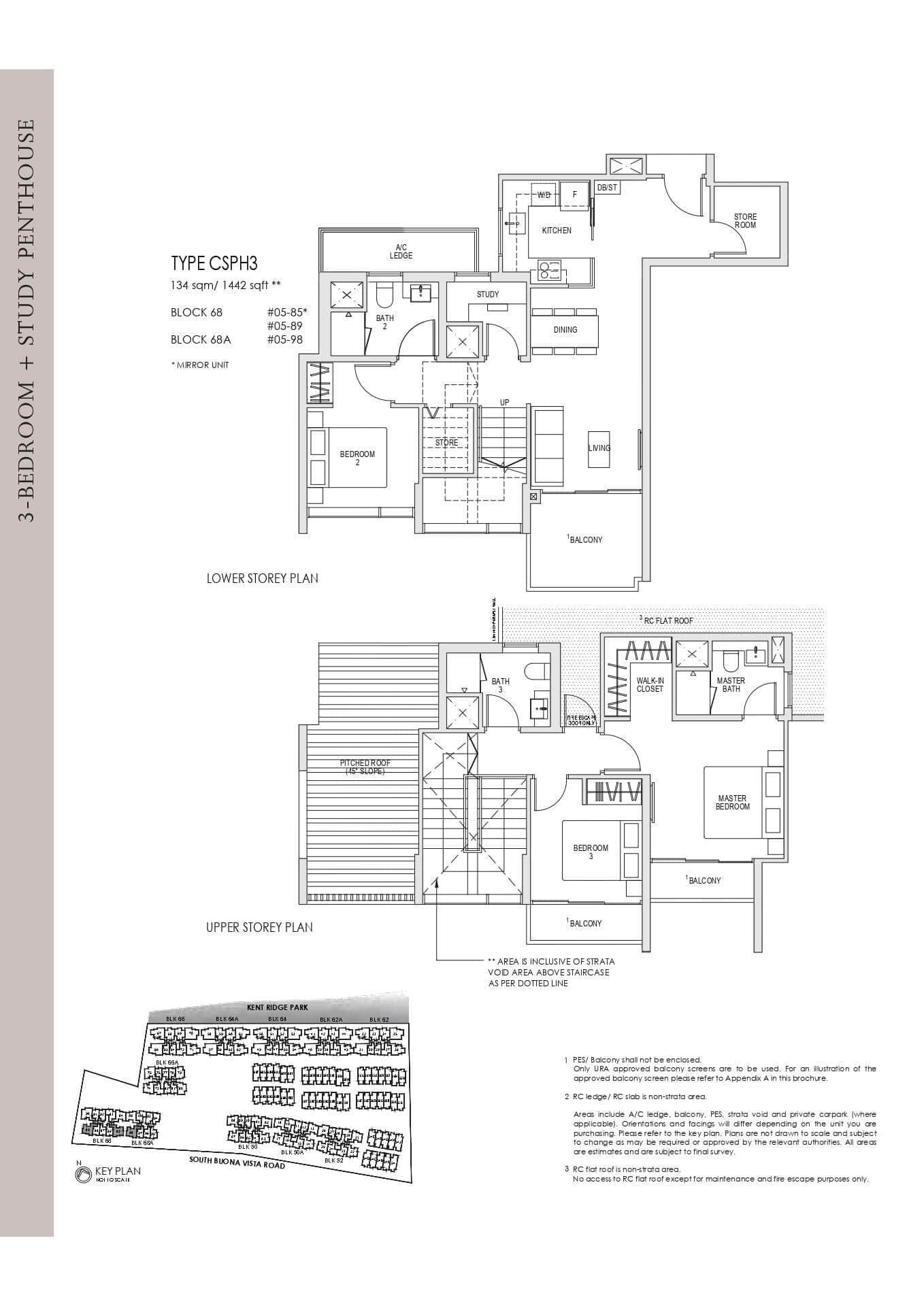
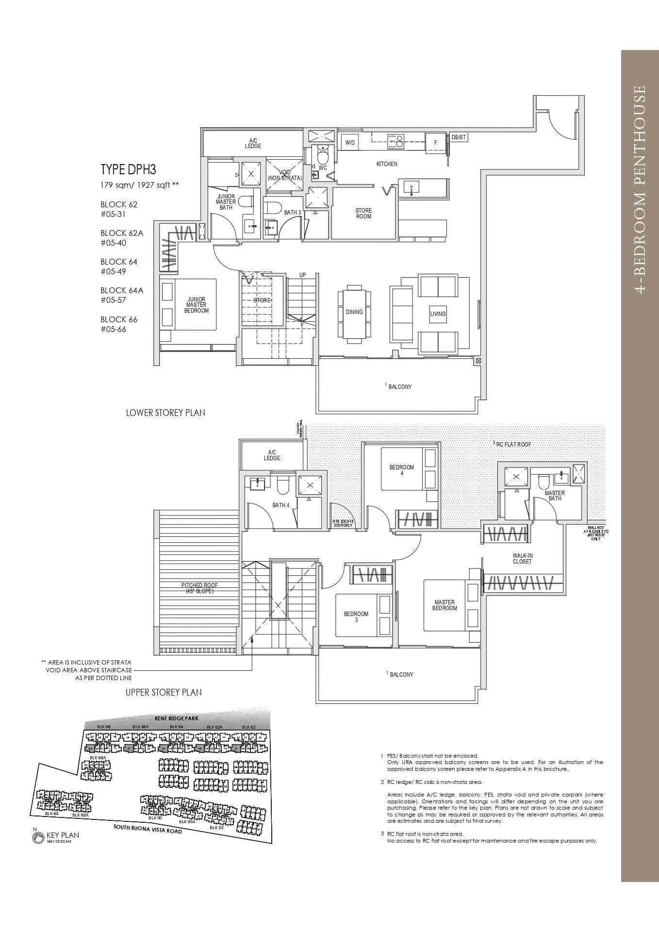
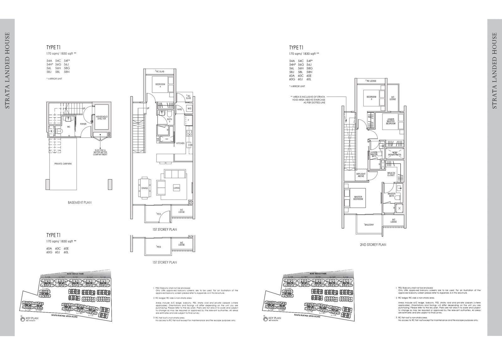
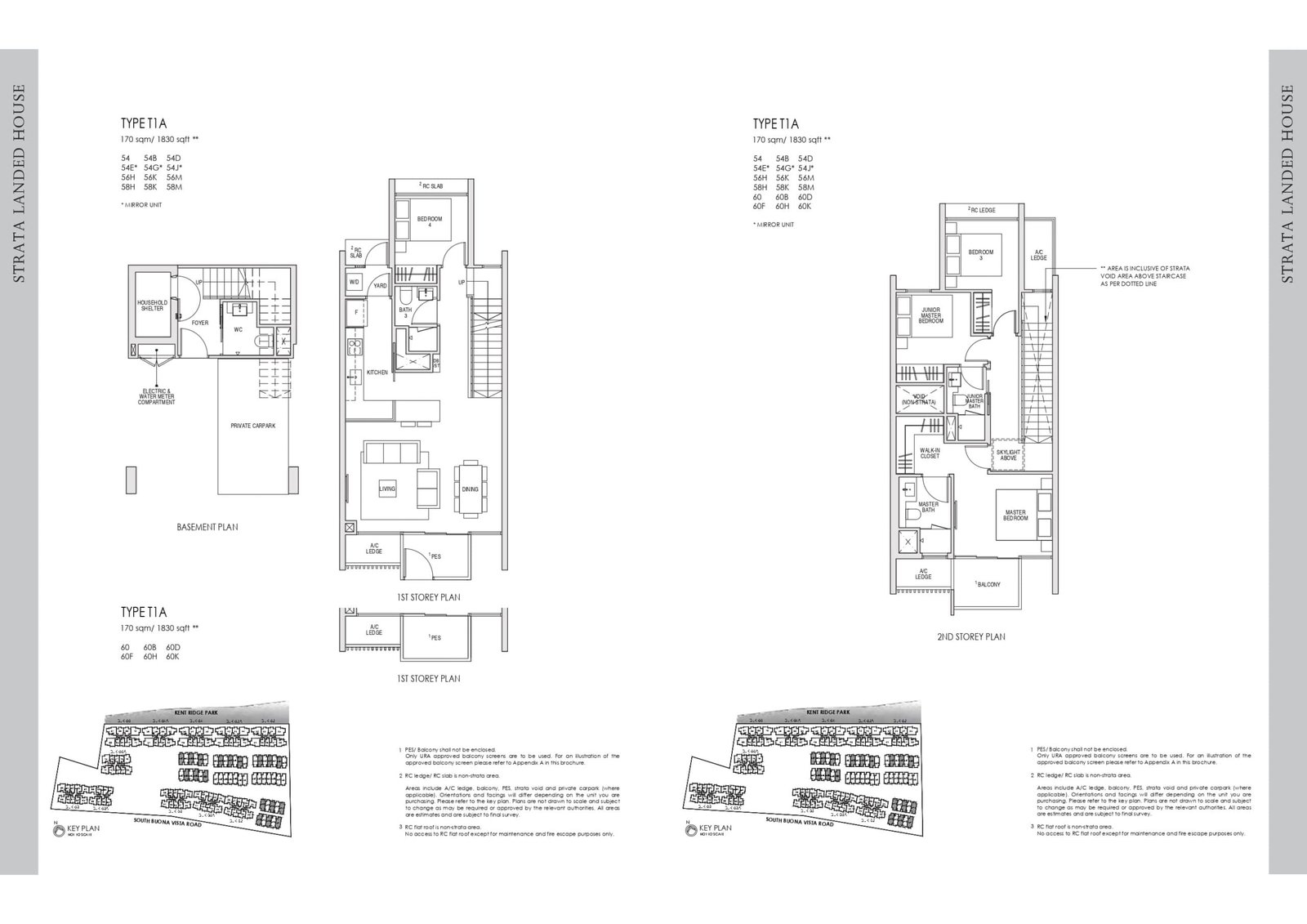
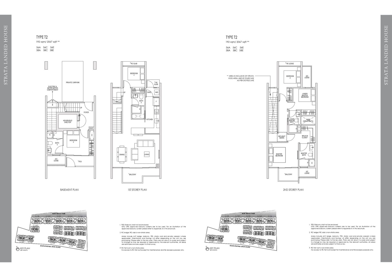
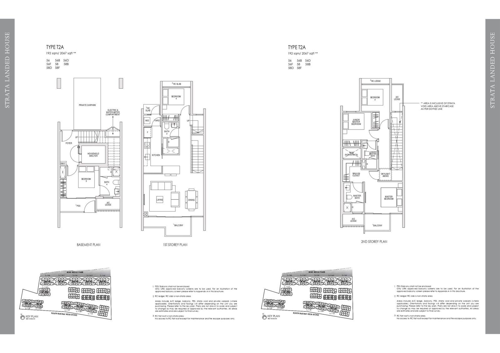
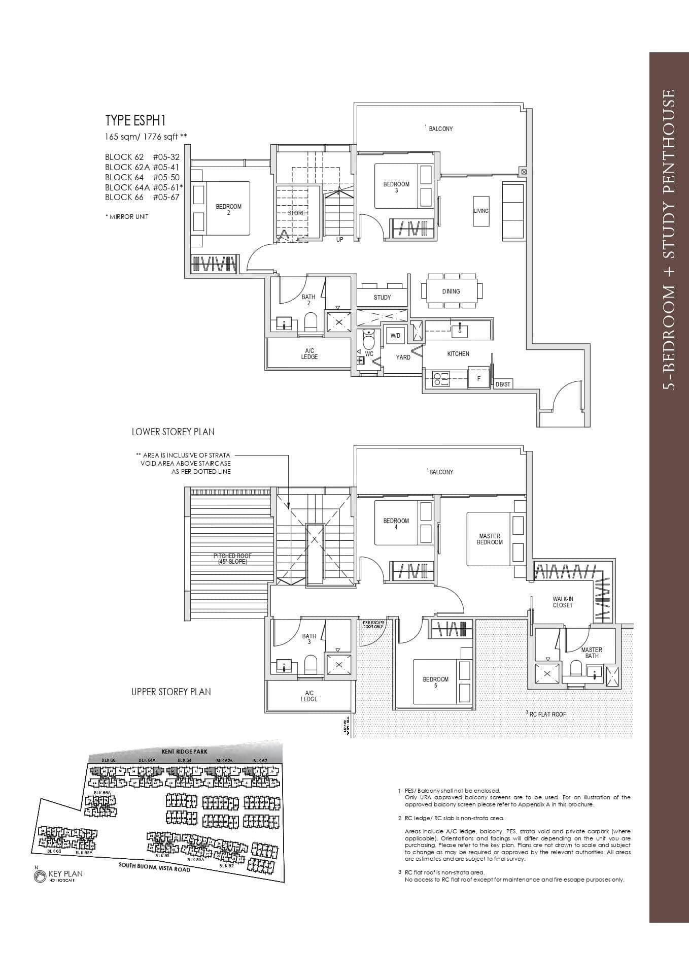
Kent Ridge Hill Residences is a luxury condominium development located in Queenstown, District 5. Completed in 2024, the development comprises of 61 blocks and a total of 548 units. The development offers a range of unit types, including 1-bedroom apartments and up to 5-bedroom family homes, all fitted with branded appliances and fittings.
One of the key highlights of living in Kent Ridge Hill Residences is its exclusive residents-only access to Kent Ridge Park. The park, which was the site of one of the last battles of World War II, is a historical and lush green corridor that's part of the larger Southern Ridges. With direct access to the park from the development, exercising and nature-lovers will be in their element with the availability of 20 fitness stations, a playground, and a mountain biking trail.
The development is also conveniently located within walking distance to MRT stations such as Pasir Panjang and Haw Par Villa, providing easy access to other areas of Singapore. The location also offers proximity to popular shopping areas such as Orchard Road, which is a 20-minute drive away, as well as mature communities of Holland Village, Dempsey Hill, and Rochester Park. Amenities such as supermarkets, clinics, and banks are also easily accessible from the development. Overall, Kent Ridge Hill Residences offers a luxurious living experience with the added bonus of exclusive access to a historical and nature-rich park.














































