Gems Ville is a new launch condominium located in the heart of District 14, along Geylang Lorong 13. A freehold 8-storey development, it boasts communal facilities and is expected to be completed in 2025. The modern design of the building stands out in the bustling metropolis and offers residents a range of facilities in the area, including cafes, pubs, local gourmet options and casual coffee shops. Additionally, reputable schools and sporting facilities are located in the vicinity, making it a well-rounded neighbourhood for people of all walks of life.
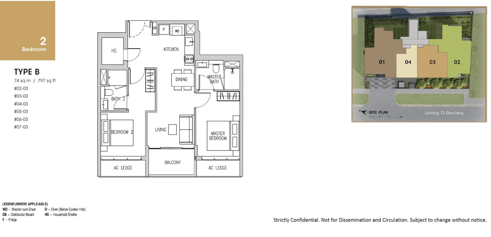
The development offers a variety of unit choices, including 1- to 3-bedroom apartments, catering to homeowners with different lifestyle choices and requirements. The high ceilings and glass windows allow for natural ventilation and sunlight, keeping the home bright and radiating positive energy. The land size of 7,868 square feet also allows for essential facilities for the convenience of residents.
Gems Ville is conveniently located with easy access to public transportation, including the Kallang and Aljunied MRT for the East-West Line, Geylang Bahru MRT for the Downtown Line and Mountbatten MRT for the Circle Line. Additionally, connecting expressways including KPE and PIE offer easy access to other parts of the island and Nicoll Highway takes commuters just 10 minutes to get to the Central Business District of Singapore.
The development is being led by the East Asia Geylang Development, a local company registered in Singapore and founded in April 2020. This will be one of their flagship projects and the company has acquired the Yuen Sing Mansion freehold house for S$15.2 million in 2020, which will be the site where Gems Ville will stand in the future.
Residents will be spoilt for choice with the number of local and international food options available within walking distance of their residence, as well as essential services such as banks, supermarkets, pharmacies, clinics and convenience stores. Notable amenities include Guillemard Village, Pavilion Square, City Plaza, Geylang ActiveSG Field, Sims Vista Market and Food Centre, Old Airport Road Food Centre and Shopping Mall and the Kallang Estate Fresh Market and Food Centre. Fitness enthusiasts will also be happy to know that indoor stadium and a full range of fitness facilities are located nearby.









